ID CP2861727

Apartament 2 camere Casa de Cultura - centrala termica | bloc 1978

ID CP2861727

70,000 €

Apartament cu 2 camere de vânzare
Casa de Cultura, Constanta
38.32 mp
1978

!!!APARTAMENT ÎN REPREZENTARE EXCLUSIVĂ!!!

COMISON 0% pentru cumpărător!

Vă propunem spre vânzare un apartament de 2 camere în zona Casa de Cultură, situat la etajul 1 al unui imobil de 4 nivele edificat în anul 1978.

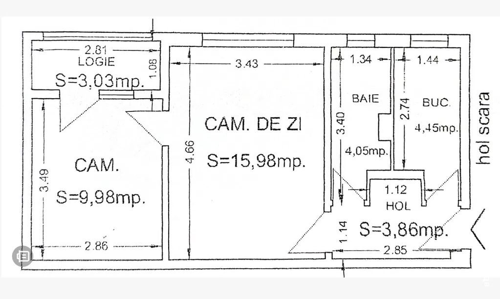
Apartamentul este semidecomandat, are o suprafață utilă de 38.32 mp, plus un balcon în suprafață de 3.03 mp; suprafață totală utilă 41.35 mp; suprafață construită 46 mp. Geamurile sunt tip termopan, inclusiv balconul închis în termopan. Ușa de la intrare este metalică.

Încălzirea se face cu ajutorul centralei termice proprii. Orientarea apartamentului este pe Nord-Vest. Imobilul dispune de aparat de aer condiționat și are geam la baie pentru aerisire naturală.

Imobilul este ideal pentru orice familie sau pentru investiție (închiriere), deoarece zona oferă toate facilitățile.

Avantajele zonei:

- Casa de Cultură (3 min)

- Liceul de Arte Regina Maria (5 min)

- Liceul cu program sportic Nicolae Rotaru (5 min)

- Liceul Tehnologic de Electrotehnică și Comunicații (5 min)

- Liceul Teoretic Ovidius (10 min)

- Școala Gimnazială nr 24 Ion Jalea (5 min)

- Grădinița The Little Bumbelbees (5 min)

- Grădinița Vila Montessori (5 min)

- Facultatea Andrei Șaguna (5 min)

- Loc de joacă pentru copii “Țara Piticilor”

- Parcul Casei de Cultură (3 min)

- Piața Balada (5 min)

- Supermarket Profi (3 min)

- Supermarket Mega Image (3 min)

- Hipermarker Kaufland (5 min)

- Hipermarket Lidl (5 min)

- Heka Hospital (5 min)

- Policlinică, Sinevo (7 min)

- Oficiul Postal (3 min)

- Farmacii, bănci (1 min)

- Mijloace de transport în comun (1 min)

Beneficiile tehnice:

- Apartament încadrat

- Etaj intermediar

- Centrală termică proprie

- Geamuri termopan + balcon închis în termopan

- Gresie, faianță, parchet laminat

- Terasa blocului reabilitată

Modalități de cumpărare:

- cash

- credit (imobiliar/ipotecar)

Avantajele zonei și beneficiile proprietății îți oferă un confort sporit, siguranța unui cămin cald și primitor și sentimentul de acasă.

Sună ACUM pentru stabilirea unei vizionări!

Citește mai mult

  • Tip apartament
    Apartament
  • Compartimentare
    Semidecomandat
  • Număr camere
    2
  • Dormitoare
    1
  • Număr bucătării
    1
  • Număr băi
    1
  • Geam la baie
    Da
  • Etaj
    1
  • Suprafață utilă
    38.32 mp
  • Suprafață construită
    46 mp
  • Suprafață totală
    41.35 mp
  • Disponibilitate
    Imediat
  • Orientare
    Nord-Vest
  • Confort
    2
  • Stare interior
    Finisat clasic
  • Număr balcoane
    1
  • Imobil
    Bloc de apart.
  • Stadiu construcție
    Finalizată
  • An construcție
    1978
  • Tip construcție
    Plăci
  • Număr etaje clădire
    4
  • Cadastru
    Există
  • Intabulare
    Există
  • Mod de dobândire
    Contract
  • Certificat Energetic
    Există

Facilități

Aer condiționat
Apă
Apometre
Aragaz
Bucătărie închisă
Bucătărie mobilată
Bucătărie utilată
Cadă
Calorifere
Canalizare
CATV
Centrală proprie
Contor electric
Contor gaz
Curent
Faianță
Ferestre PVC
Frigider
Gaz
Geamuri termopan
Gresie
Hotă
Iluminat stradal
Interfon
Internet
Mașină de spălat rufe
Mijloace de transport în comun
Mobilat complet
Parchet
Străzi asfaltate
Telefon
TV
Ușă intrare metal
Uși interior celulare
Vopsea lavabilă
Wireless
Florin-Marius Ungheanu - TRÎMBIȚAȘU ESTATE
Florin-Marius Ungheanu
Agent Imobiliar

+40 373 806 593


Solicită chiar acum o vizionare
Telefon
Sună acum Solicită vizionare
Necesare:

Site-ul nu poate funcționa corect fără aceste cookie-uri. Vezi cookie-urile

Statistică:

Strângem statistici anonime despre voi, vizitatorii unici, pentru a vă îmbunătăți experiența dumneavoastră. Vezi cookie-urile

Marketing:

Pentru a ne promova mai eficient serviciile noastre, folosim cookies pentru a vă identifica și a vă oferi proprietăți și servicii personalizate. Vezi cookie-urile

Acest site folosește cookies, află detalii. Alege ce tipuri de cookies dorești să permitem: