ID CP2300868

2 camere – 66 mp - Decomandat - Oltenitei - Gata de mutat

Această proprietate nu mai este activă,
te invităm să vizualizezi proprietăți similare

ID CP2300868

85,900 €

Apartament cu 2 camere de vânzare
Central, Popesti-Leordeni
59 mp
2023

Va propunem sa locuiti in Gama Residence, un proiect nou, finalizat, construit de catre un constructor cu renume bun in piata. Un complex construit cu responsabilitate, la standarde ridicate de construire, atat din punct de vedere al structurii cat si al designului. Complexul este format din 2 blocuri de cate 3 niveluri, cu LIFT, cu multiple locuri de parcare supraterane, ingradit si cu acces auto controlat, pentru un plus de confort si securitate.

Este inconjurat de case cu regim mic de inaltime, de liniste si vegetatie. Construit in anul 2023, complexul este locuit in proportie de 75%. Actualii rezidenti au format deja o comunitate unita si pot confirma calitatea nivelului de trai in complexul ales pentru a le deveni “acasa”.

Este situat in centrul orasului Popesti Leordeni, la 50 m retras fata de Sos. Oltenitei, aproape de mijloace de transport si magazine diverse.

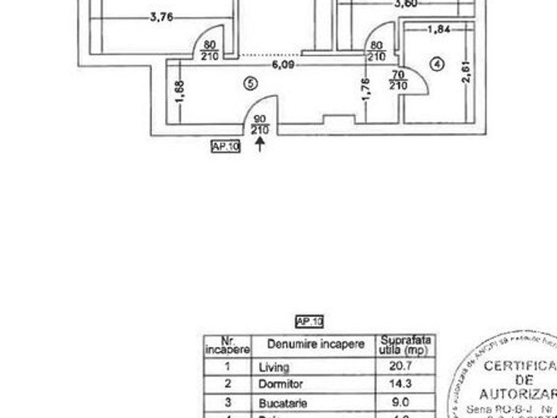
Apartamentul propus spre vanzare este compus din 2 camere decomandate si este cel mai mare pe care il puteti gasi.

Are suprafata utila totala de 65.6 mp din care suprafata utila este de 59 mp iar balconul de 6.4 mp.

Spatiile largi si tavanele inalte va confera un real confort.

Apartamentul este finisat, are toate imbunatatirile necesare unui trai modern (centrala termica, calorifere, parchet, baie echipata complet, ferestre termopan PVC, usa metalica, videointerfon).

Este contorizat individual pentru consumul de utilitati: gaz, current electric, apa.

Optional, exista posibilitatea de a achizitiona un loc de parcare in curtea interioara.

La pretul afisat, se adauga TVA 9%.

Va invitam asadar sa veniti la vizionare, sa va convingeti de avantajele acestei proprietati.

Citește mai mult

  • Tip apartament
    Apartament
  • Compartimentare
    Decomandat
  • Număr camere
    2
  • Număr bucătării
    1
  • Număr băi
    1
  • Etaj
    1
  • Suprafață utilă
    59 mp
  • Suprafață construită
    75 mp
  • Suprafață totală
    66 mp
  • Disponibilitate
    Imediat
  • Confort
    Lux
  • Stare interior
    Finisat modern
  • Număr balcoane
    1
  • Imobil
    Bloc de apart.
  • Stadiu construcție
    Finalizată
  • An construcție
    2023
  • Tip construcție
    Beton
  • Reabilitat termic
    Da
  • Număr etaje clădire
    3

Facilități

Apă
Calorifere
Canalizare
Centrală proprie
Curent
Gaz
Gresie
Iluminat stradal
Interfon
Izolație exterioară
Mijloace de transport în comun
Nemobilat
Parchet
Străzi asfaltate
Telecomandă poartă acces auto
Vopsea lavabilă
Necesare:

Site-ul nu poate funcționa corect fără aceste cookie-uri. Vezi cookie-urile

Statistică:

Strângem statistici anonime despre voi, vizitatorii unici, pentru a vă îmbunătăți experiența dumneavoastră. Vezi cookie-urile

Marketing:

Pentru a ne promova mai eficient serviciile noastre, folosim cookies pentru a vă identifica și a vă oferi proprietăți și servicii personalizate. Vezi cookie-urile

Acest site folosește cookies, află detalii. Alege ce tipuri de cookies dorești să permitem: