ID CP2300838

CISMIGIU - Stirbei | 4 camere parter pretabil Notariat cabinet Avocat

Această proprietate nu mai este activă,
te invităm să vizualizezi proprietăți similare

ID CP2300838

174,800 €

Apartament cu 4 camere de vânzare
Ultracentral, Bucuresti
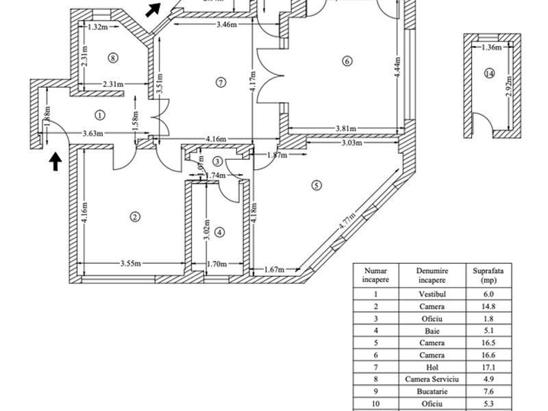
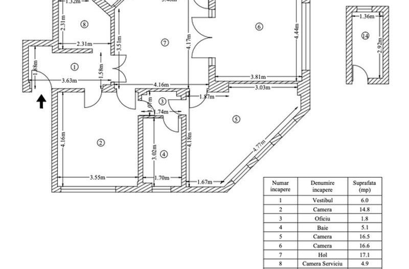
100 mp
1940

COMISION 0% pentru Cumpărător !

Va propun spre vanzare un apartament cu 4 camere in inima Bucurestiului pe Strada Stirbei Voda intr-un bloc fara risc seismic, in imediata apropiere de Parcul Cismigiu, sediul DNA, Conservator, Sala Palatului, Muzeul National de Arta, Calea Victoriei si multe alte puncte de interes ultracentrale.

Pentru ca pozitia imobilului este de necontestat, vreau sa mentionez si cateva avantaje ale proprietatii:

- neavand risc seismic, poate fi cumparat prin credit ipotecar (ceea ce il face cel putin interesant pentru investitie)

- exista centrala de bloc, deci apa calda si caldura nu sunt o problema

- etajul este parter inalt, ceea ce il transforma in sediul perfect pentru un cabinet notarial sau cabinet de avocatura

- este un apartament circular, ceea ce faciliteaza crearea unei sali de asteptare

- exista 1 boxa in proprietate, ce poate deservi ca spatiu de depozitare pentru arhive de documente

- necesita renovare integrala, deci vi-l puteti customiza dupa bunul plac si necesitati

As indrazni sa spun ca este o proprietate unica, ce merita atentia oamenilor care stiu sa aprecieze aceste bijuterii interbelice, in pozitii care nu se mai "fabrica".

Pentru orice alte intrebari, va rog sa ma sunati telefonic la numarul din anunt.

Multumesc pentru timpul acordat !

Citește mai mult

  • Tip apartament
    Apartament
  • Compartimentare
    Semidecomandat
  • Număr camere
    4
  • Număr bucătării
    1
  • Număr băi
    2
  • Etaj
    Parter
  • Suprafață utilă
    100 mp
  • Disponibilitate
    Imediat
  • Confort
    1
  • Număr balcoane
    1
  • Imobil
    Bloc de apart.
  • An construcție
    1940
  • Număr etaje clădire
    7

Facilități

Apă
Apometre
Calorifere
Canalizare
CATV
Centrală imobil
Curent
Faianță
Gaz
Gresie
Iluminat stradal
Interfon
Mijloace de transport în comun
Parchet
Străzi asfaltate
Telefon
Wireless
Necesare:

Site-ul nu poate funcționa corect fără aceste cookie-uri. Vezi cookie-urile

Statistică:

Strângem statistici anonime despre voi, vizitatorii unici, pentru a vă îmbunătăți experiența dumneavoastră. Vezi cookie-urile

Marketing:

Pentru a ne promova mai eficient serviciile noastre, folosim cookies pentru a vă identifica și a vă oferi proprietăți și servicii personalizate. Vezi cookie-urile

Acest site folosește cookies, află detalii. Alege ce tipuri de cookies dorești să permitem: