ID CP2842595

Constructie Ruina 42 mp pe strada Orzari colt Agricultori teren 90mp

ID CP2842595

69,000 €

Casă / Vilă cu 2 camere de vânzare
Calea Calarasilor, Bucuresti
35 mp
1949

OFERTA CU 0% COMISION PENTRU CUMPARATOR!

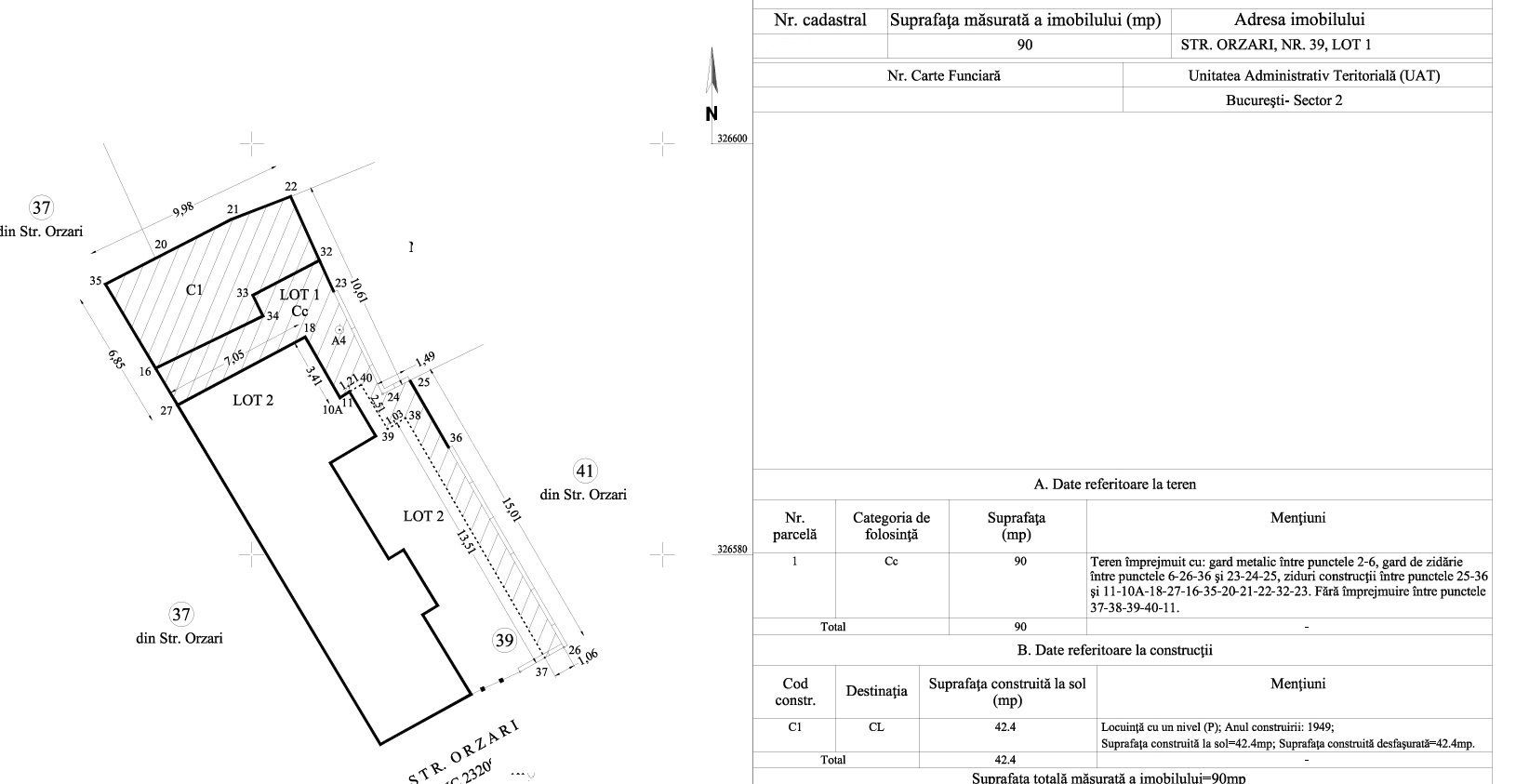
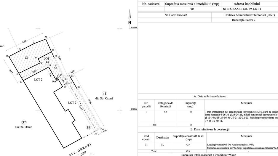
Pe strada Orzari langa intersectia cu strada Agricultori, se vinde o proprietate compusa din teren de 90 mp si o ruina ce a reprezentat o casa de 2 camere si dependinte din caramida, construita conform documentelor in 1949, cu amprenta la sol de 42,4 mp din cei 90 mp totali de teren. Aceasta suprafata de teren a fost dezmembrata juridic insa nu si in fapt, cu gard, insa se poate separa daca se doreste. Avand in vedere ca locuinta in stare de ruina este intabulata in Cartea Funciara si se regaseste in documentele de proprietate, se poate construi pe actualul amplasament un imobil nou. Mai mult, in prezent in spatele casei la calcan este demarat un proiect imobiliar cu un bloc boutique, ceea ce ar fi confortabil pentru viitorul santier.

Citește mai mult

  • Număr camere
    2
  • Dormitoare
    1
  • Număr bucătării
    1
  • Număr băi
    1
  • Disponibilitate
    Imediat
  • Tip casă
    Individual
  • Stare interior
    Necesită renovare
  • Anul finisării
    1949
  • Suprafață utilă
    35 mp
  • Suprafață construită
    42.4 mp
  • Suprafață construită la sol (Amprentă)
    42.0 mp
  • Suprafață teren
    90 mp
  • Suprafață curte
    90 mp
  • Suprafață curte liberă
    48 mp
  • Stadiu construcție
    Necesită renovare
  • An construcție
    1949
  • Tip construcție
    Cărămidă
  • Număr etaje clădire
    1

Facilități

Apă
Canalizare
CATV
Curent
Curte
Curte comună
Gaz
Iluminat stradal
Internet
Mijloace de transport în comun
Străzi asfaltate
Telefon
Vlad Trîmbițașu - TRÎMBIȚAȘU ESTATE
Vlad Trîmbițașu
Broker Owner

+40 725 540 400


Solicită chiar acum o vizionare
Telefon
Sună acum Solicită vizionare
Necesare:

Site-ul nu poate funcționa corect fără aceste cookie-uri. Vezi cookie-urile

Statistică:

Strângem statistici anonime despre voi, vizitatorii unici, pentru a vă îmbunătăți experiența dumneavoastră. Vezi cookie-urile

Marketing:

Pentru a ne promova mai eficient serviciile noastre, folosim cookies pentru a vă identifica și a vă oferi proprietăți și servicii personalizate. Vezi cookie-urile

Acest site folosește cookies, află detalii. Alege ce tipuri de cookies dorești să permitem: