ID CP2300989

Spatiu comercial 150mp Cladire noua Stefanesti A3 LIPIT MEGA IMAGE

Această proprietate nu mai este activă,
te invităm să vizualizezi proprietăți similare

ID CP2300989

1,200 € (negociabil)

Spațiu comercial de închiriat
Stefanestii de Jos
150 mp
2024

OFERTA CU 0% COMISION PENTRU CHIRIAS!

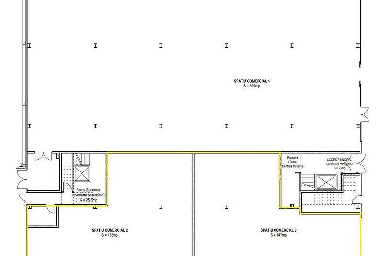
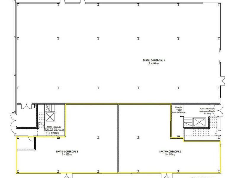
SPATIU COMERCIAL LA PARTER, cu o suprafata de 150mp, PRETABIL pentru MAGAZIN, BANCA, FARMACIE, CAFENEA, CASA PARIURI, JOCURI DE NOROC, SALON , SHOWROOM.

Lipit de acest spatiu este un Mega Image pe 600mp. DISPUNE INCLUSIV DE AUTORIZATIE ISU

Pretul afisat este pentru primele sase luni urmand ca dupa aceasta perioada chiria pentru spatiu sa fie de 2400 euro pe luna discutabil in functie de perioada contractuala.

Spatiul se afla intr-o cladire noua P+3, ce are conceptul de Centru Comercial, proaspat finalizata in curs de punere in functiune, construita conform ultimelor norme, tendinte si cerinte, cu toate avizele si autorizatiile specifice, avand o pozitie cu un potential deosebit pentru bussines, stradal pe Sos Stefanesti la intersectie cu str Sinaia, cea care duce direct in zona industriala si in Autostrada A3 Bucuresti Ploiesti, cu deschidere la doua strazi si multiple facilitati, conectata la toate utilitatile. Accesul este facil catre Centura, iar prin Autostrada se ajunge in cateva minute in zona Aviatiei, Floreasca, Pipera si Tei.

In prezent spatiile sunt open space si se pot compartimenta dupa preferinta DOTATE CU INCALZIRE IN PARDOSEALA, PLACATE CU GRESIE

Citește mai mult

  • Tip imobil
    Centru comercial
  • Trafic pietonal
    Intens
  • Etaj
    Parter
  • Număr camere
    1
  • Număr băi
    2
  • Număr bucătării
    1
  • Suprafață construită
    150 mp
  • Suprafață utilă
    150 mp
  • Suprafață teren
    200 mp
  • Front stradal
    17.0 m
  • Vitrină (m)
    17.0 m
  • Înălțime interioară
    4.0
  • Disponibilitate
    Imediat
  • Compartimentare spațiu
    Open space
  • Număr locuri parcare
    2
  • An construcție
    2024
  • Construcție nouă
    Da
  • De la dezvoltator
    Da
  • Număr etaje clădire
    3
  • Număr etaje retrase
    1

Facilități

Acces pentru persoane cu dizabilități
Afișare logo pe clădire
Apă
Canalizare
Centrală termică
Contorizare separată
Curent
Gaz
Parcare deschisă
Necesare:

Site-ul nu poate funcționa corect fără aceste cookie-uri. Vezi cookie-urile

Statistică:

Strângem statistici anonime despre voi, vizitatorii unici, pentru a vă îmbunătăți experiența dumneavoastră. Vezi cookie-urile

Marketing:

Pentru a ne promova mai eficient serviciile noastre, folosim cookies pentru a vă identifica și a vă oferi proprietăți și servicii personalizate. Vezi cookie-urile

Acest site folosește cookies, află detalii. Alege ce tipuri de cookies dorești să permitem: