ID CP2696846
Teren cu casa demolabila Bucurestii Noi Strada Prahova
    Această proprietate nu mai este activă,
    
    te invităm să vizualizezi proprietăți similare
  
ID CP2696846
235,000 €
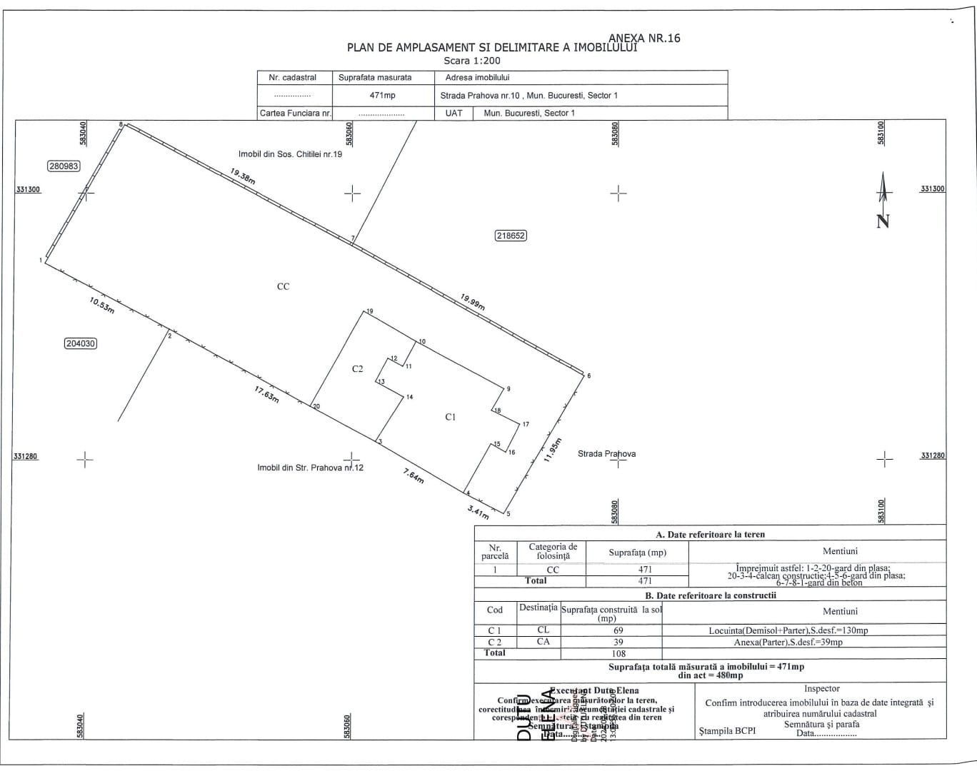
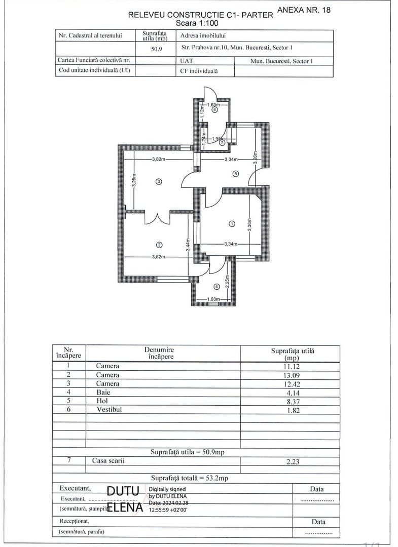
Va oferim spre vanzare un teren in suprafata de 471 mp, cu o casa demolabila, situat pe strada Prahova la nr 10. Terenul are un front strada de 11.9 metri liniari. Casa este formata din demisol si parter si a fost construita in anul 1935 -se poate demola sau se poate consolida, in zona fiind constructii cu regim de inaltime de P+5.
Va asteptam la vizionare.
 
         
         
         
         
         
         
         
         
         
         
         
         
         
         
         
         
         
         
         
         
         
         
         
         
         
         
         
         
         
         
         
         
         
         
         
         
         
         
        