ID CP2915351

FERDINAND - Lirei | Teren 412 mp| Cladire 750 mp | structura noua

ID CP2915351

870,000 € (negociabil)

Casă / Vilă cu 19 camere de vânzare
Pache Protopopescu, Bucuresti
620 mp
2024

Comision 0% cumparator

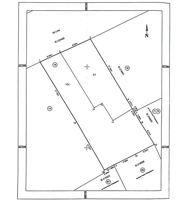
Vă propunem spre vânzare o clădire consolidată integral și supraetajată, aflată în curs de executie, cu o suprafață construită totală de aproximativ 750 mp, amplasată pe un teren de 412 mp, cu o deschidere de 13,5 ml.

Imobilul beneficiază de o poziționare centrală excelentă, pe strada Lirei, în imediata proximitate a bulevardelor Ferdinand și Pache Protopopescu, chiar vis-a-vis de Colegiul Național „Mihai Viteazul” – o zonă urbană consolidată, cu acces rapid către centrul orașului, transport public, instituții de învățământ și zone comerciale.

Un avantaj major al proprietății îl reprezintă consolidarea structurală completă, realizată prin refacerea fundațiilor, stâlpilor, grinzilor și planșeelor, ceea ce asigură un nivel ridicat de siguranță structurală și durabilitate.

În prezent, imobilul se află în stadiu de conservare, fiind finalizate:

• structura de rezistență,

• închiderile perimetrale,

• acoperișul,

• mare parte din tencuielile exterioare,

• o parte semnificativă din instalații.

Toate lucrările au fost realizate în baza unui proiect tehnic complet și a unei expertize tehnice autorizate, fiind executate conform autorizațiilor legale.

Autorizația de construire este în curs de prelungire, ceea ce permite reluarea rapidă a lucrărilor după achiziție.

Caracteristici principale

• Suprafață teren: 412 mp

• Deschidere teren: 13,5 ml

• Suprafață construită totală: aprox. 750 mp

• Suprafață utilă: aprox. 620 mp

• Regim de înălțime: S + P + 3 Etaje

Clădirea permite o configurare flexibilă, putând fi compartimentată în 5 sau până la 8 unitati individuale complet funcționale.

Potențial de utilizare:

Datorită amplasării centrale și versatilității construcției, proprietatea este ideală pentru:

• locuințe colective / apartamente pentru închiriere

• locuință multifamilială

• aparthotel / regim hotelier

• spații pentru activități comerciale sau birouri

• proiect imobiliar cu funcțiune mixtă

Această proprietate reprezintă o oportunitate solidă de investiție într-o zonă centrală foarte căutată.

Vă invităm să descoperiți această proprietate cu potențial remarcabil.

Pentru informații suplimentare sau programarea unei vizionări: 0723 301 487

Citește mai mult

  • Număr camere
    19
  • Dormitoare
    11
  • Număr bucătării
    4
  • Număr băi
    8
  • Număr terase
    6
  • Număr locuri parcare
    4
  • Disponibilitate
    Imediat
  • Tip casă
    Individual
  • Stare interior
    Semifinisat
  • Anul finisării
    2024
  • Suprafață utilă
    620 mp
  • Suprafață construită
    750 mp
  • Suprafață construită la sol (Amprentă)
    172.5 mp
  • Suprafață teren
    412 mp
  • Suprafață curte
    412 mp
  • Suprafață curte liberă
    240 mp
  • Deschidere
    13.5 m
  • Acoperiș
    Tablă
  • Stadiu construcție
    La gri
  • An construcție
    2024
  • Construcție nouă
    Da
  • Tip construcție
    Beton
  • Imobil consolidat
    Da
  • Număr etaje clădire
    3
  • Număr subsoluri
    1
  • Are demisol
    Da

Facilități

Apă
Canalizare
CATV
Curent
Curte
Gaz
Grădină proprie
Iluminat stradal
Internet
Lift
Mijloace de transport în comun
Parcare deschisă
Străzi asfaltate
Telefon
Teodor Grigore
REALTOR®

+40 723 301 487


Solicită chiar acum o vizionare
Telefon
Sună acum Solicită vizionare
Necesare:

Site-ul nu poate funcționa corect fără aceste cookie-uri. Vezi cookie-urile

Statistică:

Strângem statistici anonime despre voi, vizitatorii unici, pentru a vă îmbunătăți experiența dumneavoastră. Vezi cookie-urile

Marketing:

Pentru a ne promova mai eficient serviciile noastre, folosim cookies pentru a vă identifica și a vă oferi proprietăți și servicii personalizate. Vezi cookie-urile

Acest site folosește cookies, află detalii. Alege ce tipuri de cookies dorești să permitem: