ID CP2664166

Stefanesti Center A3 Centura Spatiu 900mp cladire comerciala/birouri

ID CP2664166

480,000 € + 21% TVA

Spațiu comercial de vânzare
Stefanestii de Jos
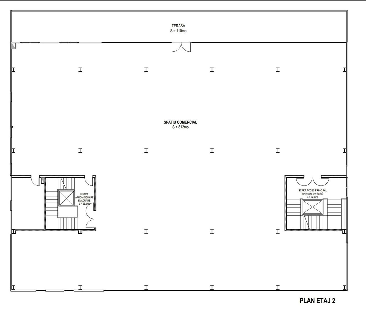
900 mp
2024

OFERTA CU 0% COMISION PENTRU CUMPARATOR!!

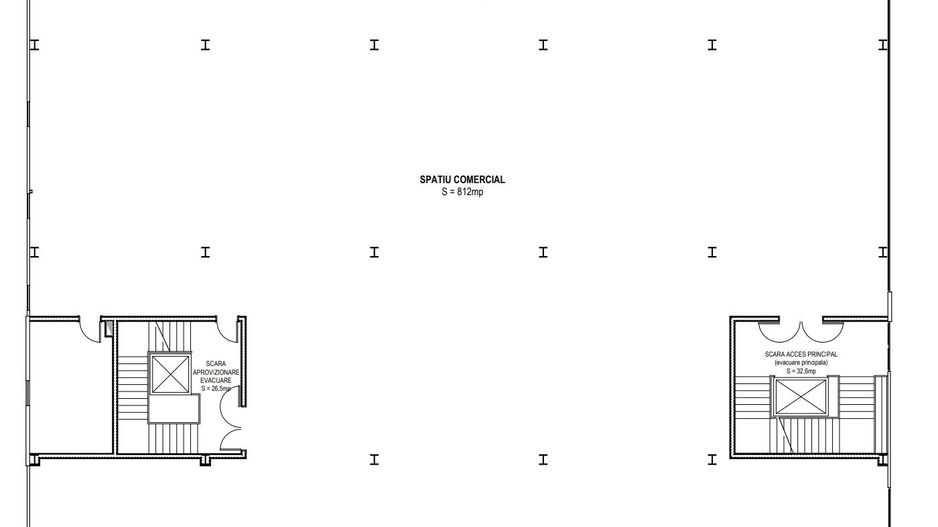
Spatiu de 900 mp ( 800 mp interiori plus 100mp terasa ) cu multiple destinatii comerciale, birouri, sala de fitness,sala cursuri, loc de joaca, clinica, salon plus multe altele, situat in Stefanestii de Jos, intr-un centru comercial nou denumit STEFANESTI CENTER, la intersectia Sos Stefanesti cu strada Sinaia, cea care duce la A3 Bucuresti Ploiesti, la doi pasi de Centura si multiple depozite din parcul logistic ( Freshfull, Metro, Dechatlon, Mega Image, plus multe alte societati cu hale depozitare si productie ). Spatiul ocupa intreg etajul doi al imobilului compus din P+3 etaje. in prezent functioneaza la parter un magazin mare MEGA IMAGE, iar la etajul 1 un China Shop. Spatiul este open space, se poate compartimenta dupa preferinta si are doua cai de acces. Este contorizat separat, iar accesul se realizeaza pe doua zone de scari si doua lifturi.

Citește mai mult

  • Tip imobil
    Centru comercial
  • Trafic pietonal
    Moderat
  • Etaj
    2
  • Număr camere
    1
  • Număr băi
    2
  • Număr terase
    1
  • Suprafață construită
    950 mp
  • Suprafață utilă
    900 mp
  • Suprafață teren
    100 mp
  • Vitrină (m)
    20.0 m
  • Înălțime interioară
    5.0
  • Disponibilitate
    Imediat
  • Compartimentare spațiu
    Open space
  • Număr locuri parcare
    4
  • An construcție
    2024
  • Construcție nouă
    Da
  • De la dezvoltator
    Da
  • Număr etaje clădire
    3
  • Număr etaje retrase
    1

Facilități

Acces pentru persoane cu dizabilități
Acces secundar marfă
Afișare logo pe clădire
Apă
Canalizare
Contorizare separată
Curent
Gaz
Parcare deschisă
Posibilitate terasă
Utilități în zonă
Vedere panoramică
Vlad Trîmbițașu - TRÎMBIȚAȘU ESTATE
Vlad Trîmbițașu
Manager Agenție Imobiliară

0725540400


Solicită chiar acum o vizionare
Telefon
Sună acum Solicită vizionare
Necesare:

Site-ul nu poate funcționa corect fără aceste cookie-uri. Vezi cookie-urile

Statistică:

Strângem statistici anonime despre voi, vizitatorii unici, pentru a vă îmbunătăți experiența dumneavoastră. Vezi cookie-urile

Marketing:

Pentru a ne promova mai eficient serviciile noastre, folosim cookies pentru a vă identifica și a vă oferi proprietăți și servicii personalizate. Vezi cookie-urile

Acest site folosește cookies, află detalii. Alege ce tipuri de cookies dorești să permitem: